Lausar lóðir í Ísafjarðarbæ: Lóðalisti hefur verið uppfærður

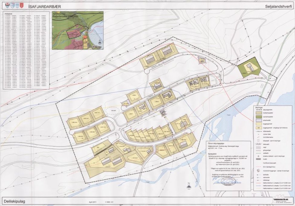
Deiliskipulag Seljalandshverfis á Ísafirði.
Deiliskipulag Seljalandshverfis á Ísafirði.

Listi yfir lausar lóðir í Ísafjarðarbæ hefur verið uppfærður og á hann bætt lóðum á eftirfarandi svæðum:

Ísafjörður

  • Lóðir fyrir íbúðahús í Seljalandi
  • Lóðir fyrir íbúðahús í Tunguhverfi
  • Lóðir fyrir hesthús í Engidal
  • Lóðir fyrir iðnaðarhúsnæði á Skeiði
  • Lóðir fyrir iðnaðarhúsnæði á Suðurtanga

Þingeyri

  • Lóð á hafnar- og iðnaðarsvæði

Upplýsingar um lausar lóðir, deiliskipulag og umsóknir