Málsmeðferð heimiluð vegna breytinga á deiliskipulagi á Torfnesi

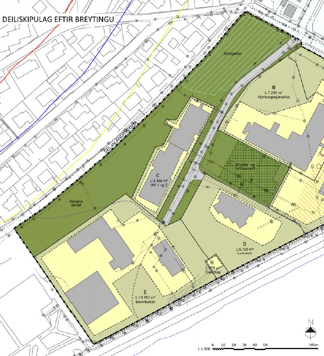
Tillaga að deiliskipulagi eftir breytingu. Mynd: Verkís.
Tillaga að deiliskipulagi eftir breytingu. Mynd: Verkís.

Bæjarstjórn hefur heimilað málsmeðferð vegna breytingar á deiliskipulagi á Torfnesi.

Markmið skipulagsbreytingarinnar er að auka svigrúm fyrir stækkun Menntaskólans á Ísafirði og leikskólans Sólborgar ásamt byggingu nýrrar dælustöðvar hitaveitu. Að auki hefur verið óskað eftira að lóð Hlífar verði minnkuð.

Stækkun Menntaskólans á Ísafirði: Til stendur að stækka verknámshúsnæði skólans. Niðurstaða frumathugunar á rýmisþörf er að byggja rúmla 1.000 m2 nýbyggingu við núverandi verknámshús.

Stækkun leikskólans Sólborgar: Fyrirhugað er að stækka leikskólann með viðbygingu í átt að Skutulsfjarðarbraut. Nauðsynlegt er að stækka lóð skólans samhliða stækkun á byggingu og mun lóðin stækka í átt að MÍ. Þannig er einnig mögulegt að bæta aðkomu að lóðinni en núverandi aðkomu er ábótavant. Gert er ráð fyrir landmótun og gróðri við lóðamörk að lóð MÍ og Skutulsfjarðarbraut til að tryggja góða hljóðvist á leiksvæðum.

Dæluhús: Í maí 2024 fannst heit vatnsæði í Tungudal. Boruð hefur verið vinnsluhola sem talin er geta gefið 35 lítra á sekæundu af um 56-57 gráðu heitu vatni. Gert er ráð fyrir frekari jarðhitaleit í Tungudal. Heita vatnið verður leitt meðfram Skutulsfjarðarbraut út á Skutulsfjarðareyri þar sem gert er ráð fyrir að reisa dæluhús. Til að draga úr sjónrænum áhrifum dæluhúss er gert ráð fyrir að það verði hulið jarðvegi. Þannig myndar það hljóðmön fyrir Sólborg og getur í leiðinni nýst sem hluti af leiksvæði skólans.

Deiliskipulagsbreytingin felst í því að lóðamörkum og byggingarreitum lóða Sólborgar og MÍ er breytt og ný lóð fyrir dæluhús skilgreind. Þá er lóð Hlífar 1 og 2 minnkuð og nýtingarhlutfall hennar hækkað.

Lóðamörk milli MÍ og Sólborgar eru færð um 21 metra til suðvesturs þannig að lóð Sólborgar stækkar um 1.352 m2. 259 m2 lóð fyrir dæluhús er skilgreind á lóðamörkum MÍ og S'olborgar. Lóð MÍ minnkar úr rúmum 14.954 m2 í 13.353 m2 og lóð Hlífar minnkar úr rúmum 6.909 m2 í 3.356 m2.

Í greinargerð kemur fram að nýbyggingar við MÍ og Sólborg skuli falla vel að yfirbragði núverandi bygginga á lóðunum.

Sem fyrr segir hefur bæjarstjórn samþykkt málsmeðferð sem er fyrsta formlega skrefið í ferli deiliskipulagsbreytingar. Næsta skref er lýsing deiliskipulagsverkefnis en hægt er að kynna sér heildarferli deiliskipulagsaðgerða á vef Skipulagsstofnunar.

Deiliskipulagsbreyting – Uppdráttur og greinargerð